Plastové okno 210x210 | Trojkřídlé se sloupky | Ideal 8000 | Trojsklo
Související produkty
Detailní popis produktu
Aluplast Ideal 8000 - okno trojkřídlé se sloupky - Trojsklo Ug = 0.5 W/m2K
Okno na míru - Plastová okna dle Vámi zadaného rozměru
Kalkulace okna: Rozměr v milimetrech zaokrouhlíte do 49 mm směrem dolů a od 50 mm směrem nahoru. Příklady kalkulací:
Okno 1849x1250 mm, je za cenu okna 1800x1300 mm (180x130 z naše nabídky).
Rozměr okna = vnější šířka rámu x vnější výška rámu bez montážního profilu (3cm) , tj. okno 180x130 = šířka 180 cm, výška 130 cm
Po odeslání objednávky budeme Vás kontaktovat telefonicky a upřesníme parametry jako šířka, výška, směr otevírání, zodpovíme případné dotazy.
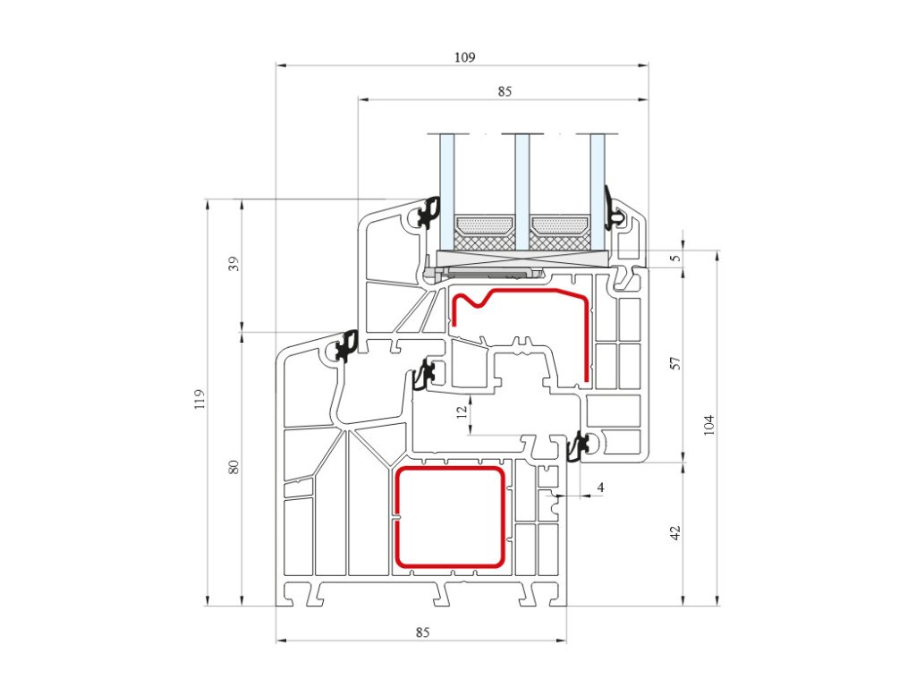
- Systém o stavební hloubce 85 mm se 3 těsněními a šesti komorovým profilem.
- Ocelové vyztužení zaručuje stálost a neměnnost tvaru.
- Profily se odlišují sněhobílou barvou a leskem, ačkoliv také existuje možnost použití mnoha standardních a dřevo imitujících barev (dekoru).
- Precizní svar v technologií V-Perfect. Spoje profilů jsou prakticky neviditelné - zvlášť v případě dýhovaných oken.
- Zaskleno standardně trojsklem 48 mm (4th/18Ar/4/18Ar/4th Ug = 0.5 W/m2K) s použitím kompozitního teplého rámečku Swisspacer Ultimate.
- Možnost zvolit zasklení ornamentní, protisluneční, bezpečnostní connex proti vloupání, zvukotěsné - o hloubce do 53 mm
- Prémiové kování Roto NX
- Těsnění dodává se v šedé a černé barvě v závislosti na volbě barvy oken.
- Široká škála kompatibilních doplňků Aluplast.
- CERTIFIKÁT české státní zkušebny CSI Zlín.
Součinitel postupu tepla Uw = 0,77 W/m2K. - zasklení Ug=0,5 W/m2K - trojsklo 48 mm s použitím kompozitního teplého rámečku Swisspacer Ultimate
Důležité informace ohledně průběhu objednávky:
- Zvolte variantu okna: Bílá-Bíla (Barva bílá), Bílá-Dekor (Barva bílá zevnitř - Dekor zvenku), Dekor-Dekor (Oboustranná barva).
Následně přidejte produkt do košíku. - Po odeslání objednávky Vám během okamžiku přijde potvrzovací e-mail s rekapitulací objednávky.
- Následně Vás budeme kontaktovat telefonicky a upřesníme parametry jako šířka, výška okna, barva profilu, barva těsnění, zodpovíme případné dotazy.
- Okna jsou vyrobená na míru na základě Vaší objednávky.
- Lze zvolit jiný typ zasklení ( dvojsklo, ornamentní, protisluneční, protihlukové, bezpečnostní VSG (Connex), bezpečnostní (ESG), Panel PUR-PVC ).
- Dovnitř skel je možné umístit meziskelní mřížky o šířce 8, 16, 26, 45 mm, nebo zvolit Vídeňské příčky (Nalepovací příčky s duplexem).
Rozměr okna = vnější šířka rámu x vnější výška rámu bez montážního profilu (3cm) , tj. okno 100x150 = šířka 100 cm, výška 150 cm
Kalkulace okna: Rozměr v milimetrech zaokrouhlíte do 49 mm směrem dolů a od 50 mm směrem nahoru. Příklady kalkulací:
- Okno 1349x1350 mm, je za cenu okna 1300x1400 mm (130x140 z naše nabídky).
- Okno 874x1226 mm, je za cenu okna 900x1200 mm (90x120 z naše nabídky).
Vysvětlení termínu dodání a způsobu zaměření oken najdete zde
- Okna se dodávají v barvě bílé nebo v jednostranných či oboustranných barevných úpravách laminací folií v barvách RAL nebo v moderních imitacích dekorů dřeva.
- Díky široké paletě barev získá interiér i fasáda nový a zajímavý vzhled a zároveň specifický elegantní ráz.
- Základní bílá barva
- Jednostranný Dekor ( Bílá zevnitř - Dekor ven )
- Oboustranný Dekor ( Dekor zevnitř - Dekor ven )
Cena a termín dodání pro ostatní barevné provedení - Na dotaz


Doplňkové parametry
| Kategorie: | Plastová okna trojkřídlá se sloupky Aluplast Ideal 8000 - šířka 210 cm |
|---|---|
| ? Šířka okna: | 210 cm |
| ? Výška okna: | 210 cm |
| Typ - počet křídel: | Trojkřídlé |
| Materiál okna: | plastové |
| ? Počet komor: | 6 |
| Profil: | Aluplast Ideal 8000 |
Výroba
Buďte první, kdo napíše příspěvek k této položce.
Pouze registrovaní uživatelé mohou vkládat příspěvky. Prosím přihlaste se nebo se registrujte.

















































