Vchodové dveře 110x180 Jednokřídlé Aluplast Ideal 4000 - Typ 05
Související produkty
Detailní popis produktu
| Vchodové dveře Jednokřídlé Aluplast Ideal 4000 - Typ 05 | ||||||||||
|
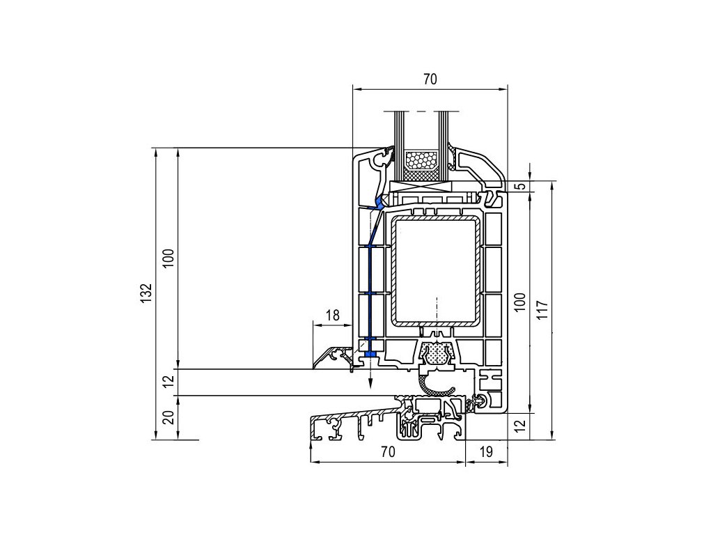
Vchodové plastové dveře IDEAL 4000 téměř dosahují díky 5-ti komorovému rámu a 4 komorovému křídlu izolačních kvalit plastových oken. Vícekomorová konstrukce se stavební hloubkou 70 mm a dveřní práh s tepelně izolační vložkou přispívají k velmi dobrým tepelně izolačním vlastnostem našich dveří. Velké výztužné komory umožňují použít výztuž, která zaručuje odpovídající statické parametry. Nízký dveřní práh zajišťuje pohodlné vcházení a vycházení. Vyrábíme také dveře s bezprahovým systémem. |
||||||||||
|
||||||||||
| Důležité informace ohledně průběhu objednávky | ||||||||||
|
Po odeslání objednávky Vám během okamžiku přijde potvrzovací e-mail s rekapitulací objednávky. Následně Vás budeme kontaktovat telefonicky, upřesníme parametry jako je rozměr dveří, směr otevíraní, barva profilu, barva těsnění a zodpovíme případné dotazy. Tyto parametry lze uvést do poznámky na konci objednávkového formuláře. Dveře dodáváme kompletní - včetně rámu, hliníkového prahu, klik, zámku FAB + 3kliče a montážních kotev .
Rozměr v milimetrech zaokrouhlíte do 49 mm směrem dolů a od 50 mm směrem nahoru. Příklady kalkulací dveří na míru:
|
||||||||||
| Barvy a dekory | ||||||||||
|
Dveře se dodávají v barvě bílé nebo v jednostranných či oboustranných barevných úpravách laminací folií v barvách RAL nebo v moderních imitacích dekorů dřeva. Díky široké paletě barev získá interiér i fasáda nový a zajímavý vzhled a zároveň specifický elegantní ráz. Lze zvolit 3 barevné varianty v barvě Bílé, Zlatý dub, Tmavý dub, Ořech, Mahagon, Antracit:
Vezměte, prosím, na vědomí, že barvy zde zobrazené, se mohou lišit od originální díky nastavení monitoru.
Termín dodání pro barvy Zlatý dub, Tmavý dub, Ořech, Mahagon, a Antracit je stejný jak pro barvu bílou. |
||||||||||
|
Objednávka a termín dodání pro ostatní barevné provedení cca 4-5 týdnu - Na dotaz Cena oken v nestandardní barvě je za doplatek. |
Doplňkové parametry
| Kategorie: | Vchodové dveře Aluplast Ideal 4000 - šířka 110 cm - Typ 05 |
|---|---|
| ? Šířka okna: | 110 cm |
| ? Výška okna: | 180 cm |
Buďte první, kdo napíše příspěvek k této položce.
Pouze registrovaní uživatelé mohou vkládat příspěvky. Prosím přihlaste se nebo se registrujte.

Dveře na míru - dle Vámi zadaného rozměru. 








































